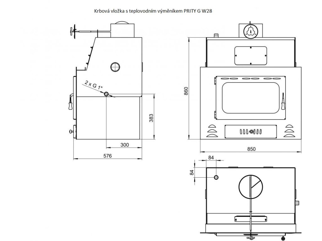
Krbová vložka s teplovodním výměníkem PRITY G W28
Popis
Krbová vložka s teplovodním výměníkem
Ocelová dvířka
Komínová klapka
Maximální délka polen: 53 cm
Zabudována komínová klapka
Ocelový korpus krbové vložky je vyroben z ocelového plechu o síle 2 až 4 mm
Výkon do prostoru: 5 kW
Výkon do teplovodního výměníku: 28 kW
Podobné produkty
| Hmotnost | 152 kg |
| Nominální výkon do prostoru | 5 kW |
| Nominální výkon do výměníku | 28 kW |
| Teplovodní výměník | ano |
| Průměr kouřovodu | 200 mm |
| Ekodesign | ano |
| Barva | černá |
| Průměr napojení výměníku | 1" |
| Maximální výkon | 33 kW |
| Šířka | 750 mm |
| Hloubka | 580 mm |
| Výška | 870 mm |
| Rozměry topeniště (Š x H x V) | 584 x 515 x 410 mm |
| Energetická účinnost | 78,56 % |
| Spotřeba paliva (dřevo) | 10,5 kg/hod. |
| Objem teplovodního výměníku (v litrech) | 66 l |
| Hmotnost | 152 kg |
| Palivo | dřevo, dřevěné brikety |
| Rozměry přikládacího otvoru (Š x V) | 480 x 260 mm |
Buďte první, kdo napíše příspěvek k této položce.
Přidat komentář
